When a building has been roofed and most of its exterior cladding has been installed, its interior is sufficiently protected from the weather that work can begin on the mechanical and electrical systems. The waste lines and water supply lines of the plumbing system are installed and, if specified, the pipes for an automatic sprinkler fire suppression system. The major part of the work for the heating, ventilating, and air conditioning system is carried out, including the installation of boilers, chillers, cooling towers, pumps, fans, piping, and ductwork. Electrical, communications, and control wiring are routed through the building. Elevators and escalators are installed in the structural openings provided for them.
The vertical runs of pipes, ducts, wires, and elevators through a multistory building are made through vertical shafts whose sizes and locations were determined at the time the building was designed. Before the building is finished, each shaft will be enclosed with fire-resistive walls to prevent the vertical spread of fire (Figure 22.1). Horizontal runs of pipes, ducts, and wires are usually located just below each floor slab, above the ceiling of the floor below, to keep them up out of the way. These may be left exposed in the finished building or, as is more common, hidden above suspended ceilings. Sometimes these services, especially wiring, are concealed within a hollow floor structure such as cellular metal decking or cellular raceways. Sometimes services are run between the structural floor deck and a raised access flooring system. (For a more complete explanation of suspended ceilings, cellular floors, and access flooring, see Chapter 24.) To house the pipes where several plumbing fixtures are lined up along a wall, a plumbing space is created by constructing a double wall with space between.
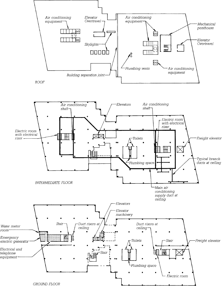
FIGURE 22.2 Three diagrammatic plans for an actual three-story suburban office building show the principal arrangements for plumbing, communications, electricity, heating, and cooling. Heating and cooling are accomplished by means of air ducted downward through two shafts from equipment mounted on the roof. The conditioned air from the vertical ducts is distributed around each floor by a system of horizontal ducts that run above a suspended ceiling, as shown on the plan of the intermediate floor. A row of doubled columns divides the building into two independent structures at the building separation joint to allow for differential foundation settlement and thermal expansion and contraction. (Courtesy of ADD Incorporated, Architects)

Specific floor areas are reserved for mechanical and electrical functions in larger buildings (Figure 22.2). Distribution equipment for electrical and communications wiring and fiberoptic networks is housed in special rooms or closets. Fan rooms are often provided on each floor for air handling machinery. In a large multistory building, space is set aside, usually at a basement or subbasement level, for pumps, boilers, chillers, electrical transformers, and other heavy equipment. At the roof are penthouses for elevator machinery and such components of the mechanical systems as cooling towers and ventilating fans. In very tall buildings, one or two entire intermediate floors may be set aside for mechanical equipment, and the building is zoned vertically into groups of floors that can be reached by ducts and pipes that run up and down from each of the mechanical floors.

Leave a Reply