At first glance, neither of the curtain wall systems presented in this chapter might seem to be a rainscreen design, because both use rubber gaskets to seal around the glass on the outside of the wall as well as on the inside. However, consider what would happen in either of these systems if both the inner and outer gaskets around a light of glass were defective: During a wind-driven rain, gravity and capillary action would be likely to draw some water past the outer gasket into the spaces between the edges of the glass and the aluminum. However, as we discovered in Chapter 19, even a defective inner gasket is very unlikely to allow air currents strong enough to carry water farther than this toward the interior of the building. If water has leaked in along a vertical edge of the glass, it is contained within the vertical mullion and will fall by gravity to the bottom, where it drains out through weep holes. If water accumulates in the horizontal mullion, it is prevented from running out of the ends of the mullion by rubber end plugs, which are seen in Figure 21.11. Its only recourse is to drain to the outdoors through weep holes that are drilled horizontally through the pressure plate and vertically through the bottom edge of the external snap-on cover. Thus, the external gasket need serve only as a deterrent seal, essentially a rainscreen, to discourage water from entering without necessarily barring its entry altogether. The internal gasket serves as an air barrier, and the hollow spaces between the edges of the glass and the mullions act as pressure equalization chambers. The entire system functions as a rainscreen assembly. In practice, of course, the manufacturer and installer take every precaution to ensure that the external gaskets are properly installed and will act as positive barriers to the passage of water, but these curtain wall systems do not depend on a perfect seal to retain their watertightness.

FIGURE 21.17 The Kawneer 1600 System4® may be glazed from either inside or outside the building. Inside glazing is usually preferred in taller buildings for its speed, safety, and convenience. (All the drawings of this system in Figures 21.17–21.22 are courtesy of Kawneer Company, Inc.)

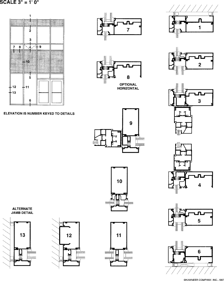
FIGURE 21.18 A complete set of details for the Kawneer 1600 System4, reproduced in the manufacturer’s detail book at one-quarter of the full size.

FIGURE 21.19 The vertical mullion for the Kawneer 1600 System4 is rigid, with no removable components except the glazing gaskets. The thermal break is an H-shaped extrusion of rigid plastic that is crimped securely into small grooves in the inner and outer portions of the mullion. Notice that the glazing pockets are of two different depths. This facilitates inside glazing, as explained in the next figure.

FIGURE 21.20 To glaze the Kawneer 1600 System4 from inside the building, rubber setting blocks are applied inside the shallow glazing pocket on the vertical mullion to cushion the edge of the glass. Rubber setting blocks are also installed in the horizontal mullion, and all the exterior-side glazing gaskets are inserted. Then the glass unit is pushed obliquely into the deep glazing pocket, squared away, and backed into the shallow pocket.
FIGURE 21.21 In order to make this mode of glass installation possible, the bottom half of the interior of each horizontal mullion is left off until the glass has been pushed into place. Then the bottom-half extrusion is added, and the interior glazing gaskets are installed. The interior gaskets are called “glazing wedges” because of their blunt wedge shape; this allows them to be installed simply by pressing them into place, wedging them between the glass and the mullion, after the glass has been installed. Notice how this shape is different from that of the exterior gaskets, which are installed before the glass.


FIGURE 21.22 Before the glazing wedges are installed in the deep-pocket side of the vertical mullion, a W-shaped rubber block is flattened and slipped between the glass and the interior side of the mullion until it passes into the empty pocket. There it springs back into shape and prevents the glass from moving too deeply into the pocket.

FIGURE 21.23 This Las Vegas casino hotel features the Kawneer 1600 System4, whose details are shown in Figures 21.17–21.22. (Photo courtesy of Kawneer Company, Inc.)

Leave a Reply