Exposed Structural and Mechanical Components
In many buildings, it makes sense to omit finished ceiling surfaces altogether and simply expose the structural and mechanical components of the floor or roof above (Figure 24.1). In industrial and agricultural buildings, where appearance is not of prime importance, this approach offers the advantages of economy and ease of access for maintenance. Many types of floor and roof structures are inherently attractive if left exposed, such as heavy timber beams and decking, concrete waffle slabs, and steel trusses. Other types of structures, such as concrete flat plates and precast concrete planks, have little visual interest, but their undersurfaces can be painted and left exposed as finished ceilings in apartment buildings and hotels, which have little need for mechanical services at the ceiling. This saves money and reduces the overall height of the building. In some buildings, the structural and mechanical elements at the ceiling, if carefully designed, installed, and painted, can create a powerful aesthetic of their own.

FIGURE 24.1 Sprinkler pipes, air conditioning ductwork, electrical conduits, and lighting fixtures are exposed in a ceiling structure of painted open-web steel joists and corrugated steel decking. The office space behind has a suspended ceiling of lay-in acoustical panels with recessed lighting fixtures. The floor is of brick with a border of concrete. (Woo & Williams, Architects. Photographer: Richard Bonarrigo)
Exposing structural and mechanical components rather than covering them with a finished ceiling does not always save money. Mechanical and structural work is not normally done in a precise, attractive fashion because it is not usually expected to be visible, and it is less expensive for workers to take only as much care in installation as is required for satisfactory functional performance. To achieve perfectly straight, neatly sealed ductwork that is free of dents, steel decks without rust and weld spatter, and square, well-organized runs of electrical conduit and plumbing, the drawings and specifications for the project must tell exactly the results that are expected, and a higher labor cost must be anticipated.
Tightly Attached Ceilings
Ceilings of any material may be attached tightly to wood joists, wood rafters, steel joists, or concrete slabs (Figure 24.2). Special finishing arrangements must be worked out for any beams and girders that protrude through the plane of the ceiling, and for ducts, conduits, pipes, and sprinkler heads that fall below the ceiling.
Suspended Ceilings
A ceiling that is suspended on wires some distance below the floor or roof structure can hang level and flat despite varying sizes of girders, beams, joists, and slabs above, and even under, a roof structure that slopes toward roof drains. Ducts, pipes, and conduits can run freely in the plenum space between the ceiling and the structure above. Lighting fixtures, sprinkler heads, loudspeakers, and fire detection devices may be recessed into the ceiling. Such a ceiling can also, at additional cost, serve as membrane fire protection for the floor or roof structure above, eliminating the need for fussy individual fireproofing of steel joists, or imparting a higher fire resistance rating to wood or precast concrete structures. For these reasons, suspended ceilings are a popular and economical feature in many types of buildings, especially office and retail structures.
Suspended ceilings can be made of almost any material; the ones most widely used are gypsum board, plaster, and various proprietary panels and tiles composed of incombustible fibers. Each of these materials is supported on its own special system of small steel framing members that hang from the structure on heavy steel wires.

FIGURE 24.2 Spraying a textured finish onto the underside of a concrete slab in a residential building, where there are no pipes, ducts, or wires to be concealed below the plane of the floor structure. (Courtesy of United States Gypsum Company)

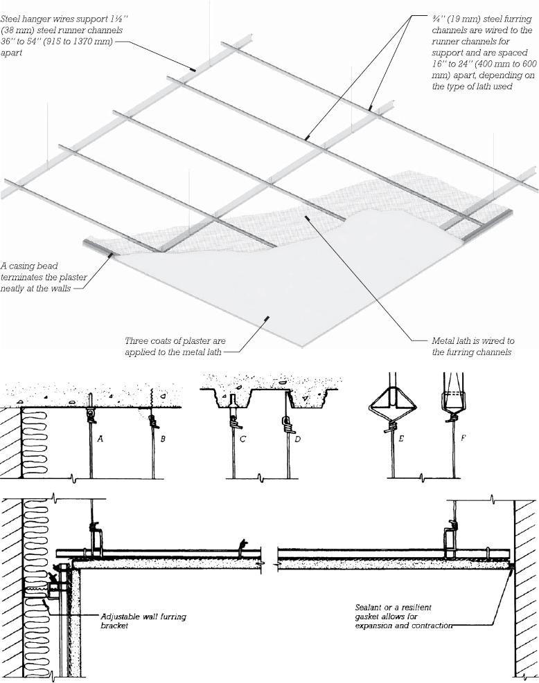
FIGURE 24.3 A suspended plaster ceiling on metal lath. At the top of the page is a cutaway isometric drawing, as viewed from below, of the essential components of the ceiling. Across the center of the page are details of six ways of supporting the hanger wires: (a) A pin is powder driven into a concrete structure. (b) A corrugated sheet metal tab with a hole punched in it is nailed to the formwork before the concrete is poured. When the formwork is stripped, the tab bends down and the hanger wire is threaded through the hole. (c) A sharp, daggerlike tab of sheet metal is driven through the corrugated metal decking before the concrete topping is poured. (d) A sheet metal hook is hung onto the lap joints in the metal decking. (e) The hanger wire is wrapped around the lower chord of an open-web steel joist. (f) The hanger wire is passed through a hole drilled near the bottom of a wood joist. At the bottom of the page is a section through a furred, insulated plaster wall and a suspended plaster ceiling.
With automated fabrication of custom elements using computerized modeling techniques (see Chapter 1), an expanded variety of panelized ceilings systems are becoming available to designers. These systems can economically produce panels made of sheet metal and, optionally, thin wood veneers, which are unique in appearance and shape, lightweight, noncombustible, easy to install, and highly effective at reducing ambient noise levels.
Suspended Gypsum Board and Plaster Ceilings
Gypsum board suspended ceilings may be screwed to ordinary light gauge steel cee channels that are suspended on wires. Special framing components have been developed that make it easy to suspend more complex shapes of gypsum board ceilings, such as cylindrical vaults, undulating surfaces, and deep coffers.
Suspended plaster ceilings have been in use for many decades; some typical details are shown in Figure 24.3. Although most suspended plaster ceilings are flat, lathers are capable of constructing ceilings that are richly sculpted, ranging from configurations resembling highly ornamented Greek or Roman coffered ceilings to nearly any form that the contemporary designer can draw. This capability is especially useful in auditoriums, theaters, lobbies of public buildings, and other uniquely shaped rooms.
Suspended Acoustical Ceilings
Ceilings made from fibrous materials in the form of lightweight tiles or panels are customarily referred to as acoustical ceilings because most of them are highly absorptive of sound energy, unlike plaster and gypsum board, which are highly reflective of sound. They are also often less costly than either plaster or even gypsum board ceilings. The sound absorption performance of a ceiling material is measured and published in the trade literature as its Noise Reduction Coefficient (NRC). NRC is a number between 0 and 1, with higher values representing higher levels of sound absorption at four specific frequencies ranging from 250 Hz to 2000 Hz. An NRC of 0.85 indicates that the material absorbs 85 percent of the sound that reaches it and reflects only 15 percent back into the room. NRCs for most acoustical ceiling materials range from 0.50 to 0.90, compared to values below 0.10 for plaster and gypsum board ceilings. This makes acoustical ceilings valuable for reducing noise levels in lobbies, office spaces, restaurants, retail stores, recreational spaces, and noisy industrial environments.
The lightweight, porous materials that produce high NRC ratings allow most sound energy to pass through. In other words, a ceiling made of porous materials will not furnish very good acoustic privacy between adjacent rooms unless a suitable full-height wall separates the rooms and blocks the ceiling plenum. The ability of a ceiling system to reduce sound transmission from one room to another through a shared plenum is measured by its Ceiling Attenuation Class (CAC). CAC is measured in decibels, with higher values representing greater reductions in sound transmission. For closed offices with shared ceiling plenums, a ceiling system with a CAC of not less than of 35 to 40 is recommended. Dense, nonporous ceiling materials tend to have higher CACs than lighter, more porous materials.
A third measure of ceiling acoustical performance is Articulation Class (AC). Like NRC, AC is a measure of sound reflection and absorption. However, AC is intended specifically to measure a ceiling system’s contribution to speech clarity and privacy in a typical open office environment. It measures a ceiling’s absorption and reflection of sound over a 60-inch (1500-mm)-high partition at frequencies ranging from 500 to 4000 Hz, those particularly critical to normal speech. Higher AC values represent greater acoustical clarity and privacy, with minimum recommended values falling in the range of 170 to 200.
Where both noise reduction within a space and sound attenuation between spaces are required simultaneously, composite ceiling panels with a highly absorbent material laminated to a dense substrate may be used; these have high values for both noise reduction (NRC or AC) and sound attenuation (CAC). The same result can be achieved by mounting acoustically absorbent tiles on a suspended ceiling of plaster or gypsum board.

FIGURE 24.4 Acoustical ceilings are supported on suspended grids of tees formed from sheet metal. At the top of the figure is a cutaway view looking up at an acoustical ceiling of lay-in panels. Below are sections illustrating how the grid may be exposed, recessed, or concealed for different visual appearances.

FIGURE 24.5 The grid for an acoustical ceiling is assembled with a simple interlocking joint.
The most economical acoustical ceiling systems consist of lay-in panels that are supported by an exposed grid (Figures 24.4 and 24.5). Any panel in the ceiling can be lifted and removed for access to services in the plenum space. For a smoother appearance, a concealed grid system may be used instead. Concealed grid systems require special panels for plenum access. Suspended acoustical ceilings are available in hundreds of different designs. Figures 24.6–24.11 show some typical examples.
FIGURE 24.6 Many acoustical ceilings are manufactured as integrated ceiling systems that incorporate the lighting fixtures and air conditioning outlets into the module of the grid. In this integrated ceiling, viewed from above, the hanger wires, grid, acoustical panels, fluorescent lighting fixture, and distribution boot for conditioned air have been installed. The boot will be connected to the main ductwork with a flexible oval duct. (Photo courtesy Armstrong World Industries)

FIGURE 24.7 As viewed from below, the integrated ceiling shown in Figure 24.6 has a slot around the lighting fixture through which air is distributed from the boot above. The roughly textured acoustical panels used in this example are patterned with two cross grooves that work with the recessed grid to create the look of a ceiling composed of smaller square panels. (Photo courtesy Armstrong World Industries)

FIGURE 24.8 Air distribution in this integrated acoustical ceiling is through slots that occur between panels. Lighting fixtures, loudspeakers, and smoke detectors are incorporated simply and unobtrusively. (Courtesy of United States Gypsum Company)

FIGURE 24.9 Coffered acoustical ceilings that act as light diffusers are designed and marketed as integrated systems. (Photo courtesy Armstrong World Industries)

Economy has worked so great a change in our dwellings, that their ceilings are, of late years, little more than miserable naked surfaces of plaster. [A discussion of ceiling design will] possess little interest in the eye of speculating builders of the wretched houses erected about the suburbs of the metropolis, and let to unsuspecting tenants at rents usually about three times their actual value. To the student it is more important, inasmuch as a well-designed ceiling is one of the most pleasing features of a room.
Joseph Gwilt, The Encyclopedia of Architecture, London, 1842

FIGURE 24.10 AND 24.11 A variety of patterns and textures are available in acoustical ceilings. (Photos courtesy Armstrong World Industries)
Suspended Linear Metal Ceilings
Figure 24.12 illustrates a suspended linear metal ceiling made of long elements that are formed from sheet aluminum attached to a special type of concealed grid.
Suspended Fire Resistance Rated Ceilings
Suspended ceilings that are part of a fire resistance rated floor–ceiling or roof–ceiling assembly may be made of gypsum board, plaster, or lay-in panel and grid systems that are specially designed to have the necessary resistance to the passage of fire. Penetrations in such membrane ceilings must be detailed so as to maintain the required degree of fire resistance throughout the ceiling: Lighting fixtures must be backed up with fire-resistive material, air conditioning grills must be isolated from the ducts that feed them by means of automatic fire dampers, and any access panels provided for maintenance of above-ceiling services must themselves meet requirements for fire resistance.

FIGURE 24.12 A mirror finish linear metal suspended ceiling, with an exposed steel space truss structure beyond. (Architect: DeWinter and Associates. Photo courtesy of Alcan Building Products, a division of Alcan Aluminum Corporation)
Interstitial Ceilings
Many hospital and laboratory buildings have extremely elaborate mechanical and electrical systems, including not just the usual air conditioning ducts, water and waste piping, and electrical and communications wiring, but also such services as fume hood ducting, fuel gas lines, compressed air lines, oxygen piping, chilled water piping, vacuum piping, and chemical waste piping. These ducts and tubes occupy a considerable volume of space in the building, often in an amount that virtually equals the inhabited volume. Furthermore, all these systems require continual maintenance and are subject to frequent change. As a consequence, many laboratory and hospital buildings are designed with interstitial ceilings. An interstitial ceiling is suspended at a level that allows workers to travel freely in the plenum space, usually while walking erect, and is structured strongly enough to support safely the weight of the workers and their tools. In effect, the plenum space becomes another floor of the building, slipped in between the other floors, and the overall height of the building must be increased accordingly. Its advantage is that maintenance and updating work on the mechanical and electrical systems of the building can be carried on without interrupting the activities below. Interstitial ceilings are made of gypsum or lightweight concrete and combine the construction details of poured gypsum roof decks and suspended plaster ceilings. Figure 24.13 shows the installation of an interstitial ceiling.

FIGURE 24.13 The final steps in constructing an interstitial ceiling: The ceiling plane consists of gypsum reinforced with hexagonal steel mesh. It is framed with steel truss tee subpurlins, the tops of which are visible at the right of the picture, supported by steel wide-flange beams suspended on rods from the sitecast concrete framing above. The final layer of gypsum is being pumped onto the ceiling from the hose near the center of the picture. The wet gypsum is struck off level with the wooden straightedge seen here hanging on the beams and troweled to a smooth walking surface. When the gypsum has hardened, installation of the ductwork, piping, and wiring in the interstitial plenum space can begin, with workers using the gypsum ceiling as a walking surface. (Photo compliments Keystone Steel & Wire Co.)
CONSIDERATIONS OF SUSTAINABILITY IN FINISH CEILINGS AND FLOORS
Acoustical Ceilings
• Acoustical ceiling tile can be a source of volatile organic compound (VOC) emissions as well as a reservoir for emissions from other sources.
• Low-emitting acoustic tiles are available, as are tiles with high recycled materials content.
• When the space above suspended ceilings is used as a return air plenum for the building’s HVAC system, contaminants and emissions from the acoustical tile can be introduced into the system’s air stream and redistributed to other parts of the building.
Hard Flooring Materials
• Concrete, stone, masonry, ceramic tile, and cementitious mortars and grouts are chemically inert and generally free of emissions.
• Organic adhesives used in tiling and resins used in thin-set terrazzo may be sources of emissions.
• Sealers applied to hard flooring materials to provide water repellency and protection from staining are potential sources of emissions. Solvent-based sealers generally have higher emissions than water-based products.
Wood and Bamboo Flooring
• Considerations of sustainability in wood products are discussed in Chapter 3 of this volume.
• Bamboo is harvested in a 4- to 6-year cycle and is considered a rapidly renewable material. Some bamboo flooring products are produced with urea-formaldehyde glues, a potential source of emissions. Others are manufactured with alternative low-emitting adhesives.
• Finishes for wood and bamboo flooring are potential sources of emissions. Water-based finishes and waxes are generally lower emitting than solvent- based finishes, but they may not be as durable or as easy to apply.
Resilient Flooring
• Self-leveling cements used to prepare subfloors for resilient flooring coverings are potential sources of emissions.
• Vinyl (polyvinyl chloride) is a component of many resilient floor coverings and other interior finish products. It has an embodied energy of approximately 30,000 BTU per pound (70 MJ/kg). At the time of this writing, it remains a controversial material from a sustainability standpoint:
• Vinyl manufacture releases significant amounts of toxic air pollutants. Plasticizers in vinyl products tend to outgas over time, and some are toxic. The more flexible a vinyl product is, the more plasticizers it contains. When vinyl burns, it can release hydrochloric acid and dioxins. Although vinyl is a thermoplastic, and therefore readily recyclable, today most vinyl building products are disposed of in landfills at the end of their normal lifespan.
• Vinyl materials are lightweight, strong, and relatively low in embodied energy in comparison to many available alternative materials. The vinyl manufacturing industry continues to improve manufacturing processes and to reduce vinyl-related health risks. Studies of the full life-cycle impacts of vinyl building materials compared to available alternatives, undertaken by the U.S. Green Building Council and The Natural Step (a United Kingdom sustainability organization), have recommended against the elimination of vinyl materials from building construction at the present time.
• Some vinyl tiles are manufactured from recycled vinyl.
• The embodied energy of synthetic rubber is about 50,000 BTU per pound (120 MJ/kg), and that of natural latex rubber is about 30,000 BTU per pound (70 MJ/kg).
• Some rubber flooring is manufactured from recycled car tires. Natural rubber is a renewable resource extracted from tropical rubber plants without harming the plant.
• Cork is a renewable material harvested in a 9-year cycle.
• VOC emissions from the stripping and rewaxing of resilient flooring over its lifetime can be many times greater than those originating from the flooring material itself.
• Resilient flooring meeting the Resilient Floor Institute’s FloorScore requirements for low VOC emissions satisfy current LEED requirements for low-emitting floor materials.
Carpet
• The embodied energy of nylon carpet is roughly 65,000 BTU per pound (150 MJ/kg), that of polypropylene is 40,000 BTU per pound (93 MJ/kg), and that of wool is 45,000 BTU per pound (105 MJ/kg). In general, natural fibers tend to be lower in embodied energy than synthetic fibers but also less durable.
• Many carpets and cushions are made with at least some recycled material.
• Carpet, cushions, and adhesives meeting the requirements of the Carpet and Rug Institute’s Green Label Plus program satisfy current LEED requirements for low-emitting carpet systems.
• Factory-applied adhesives tend to have lower VOC emissions than adhesives applied on the construction site.
• Stretch-in installation of sheet carpet and free-lay installation of carpet tile (methods of installation explained later in this chapter) eliminate the need for carpet adhesive.
• Carpets can become reservoirs for VOCs emitted by other materials, as well as for bacteria, microbes, dust mites, and other contaminants.
• Carpet tile, which allows easy spot replacement, lessens the need for full carpet replacement when a small area becomes worn or damaged, thus extending the life of the carpet installation and reducing waste.
• Recycling of used carpet is complicated by the fact that many different fibers, which must be recycled separately, are used. Some manufacturers are introducing “close-the-loop” reclamation programs in which they will recycle or repurpose their own products to prevent them from being disposed of in landfills.

Leave a Reply