The word window is thought to have originated in an old English expression that means “wind eye.” The earliest windows in buildings were open holes through which smoke could escape and fresh air could enter. Devices were soon added to the holes to give greater control: hanging skins, mats, or fabric to regulate airflow; shutters for shading and to keep out burglars; translucent membranes of oiled paper or cloth, and eventually of glass, to admit light while preventing the passage of air, water, and snow. When a translucent membrane was eventually mounted in a moving sash, light and air could be controlled independently of each other. With the addition of woven insect screens, windows permitted air movement while keeping out mosquitoes and flies. Further improvements followed over the centuries. A typical window today is an intricate, sophisticated mechanism with many layers of control: curtains, shade or blind, sash, glazings, insulating airspace, low-emissivity and other coatings, insect screen, weatherstripping, and perhaps a storm sash or shutters.

Windows were formerly made on the construction site by highly skilled carpenters, but today nearly all of them are produced in factories. The reasons for factory production are higher production efficiency, lower cost, and, most important, better quality. Windows must be made to a very high standard of precision if they are to operate easily and maintain a high degree of weathertightness for many years. In cold climates especially, a loosely fitted window with single glass and a frame that is highly conductive of heat will significantly increase heating fuel consumption for a building, cause noticeable discomfort to the occupants, and condense large quantities of water that will stain and decay materials in and around the windows.

prime window is one that is made to be installed permanently in a building. A storm window is a removable auxiliary unit that is added seasonally to a prime window to improve its thermal performance. A combination window, which is an alternative to a storm window, is an auxiliary unit that incorporates both glass and insect screening; a portion of the glass is mounted in a sash that can be opened in summer to allow ventilation through the screening. A combination window is normally left in place year round. Some windows are designed and manufactured specifically as replacement windows that install easily in the openings left by deteriorated windows removed from older buildings.

Types of Windows

Figure 18.1 illustrates in diagrammatic form the window types used most commonly in residential buildings, and Figure 18.2 shows additional types that are found largely in commercial and institutional buildings. Fixed windows are the least expensive and the least likely to leak air or water because they have no operable components. Single-hung and double-hung windows have one or two moving sashes, which are the frames in which the glass is mounted (Figure 18.3). The sashes slide up and down in tracks that are part of the window frame. In older windows, the sashes were held in position by cords and counterweights, but today’s double-hung windows usually rely on a system of springs to counterbalance the weight of the sashes. A sliding window is essentially a single-hung window on its side, and shares with single-hung and double-hung windows the advantage that tracks in the frame hold the sashes securely along two opposite sides. This inherently stable construction allows single-hung, double-hung, and sliding windows to be designed in an almost unlimited range of sizes and proportions. It also allows the sashes to be more lightly built than those in projected windows, a category that includes principally casement windows, awning windows, hopper windows, inswinging windows, and pivot windows. All projected windows have sashes that rotate outward or inward from their frames and therefore must have enough structural stiffness to resist wind loads while being supported only at two corners.

With the exception of the rare triple-hung window, no window with sashes that slide can be opened to more than half of its total area. By contrast, many projected windows can be opened to virtually their full area. Casement windows assist in catching passing breezes and inducing ventilation through the building. They are generally narrow in width but can be joined to one another and to sashes of fixed glass to fill wider openings. Awning windows can be broad but are not usually very tall. They have the advantages of protecting an open window from water during a rainstorm and of lending themselves to a building-block approach to the design of window walls (Figure 18.4). Hopper windows are more common in commercial buildings than in residential ones. Like awning windows, they will admit little or no rainwater if left open during a rainstorm (since they are inswinging). Tilt/turn windows (not illustrated) are a type of projected window with clever but concealed hardware that allows each window to be operated either as an inswinging side-hinged window or a hopper.

images

FIGURE 18.1 Basic window types.

images

FIGURE 18.2 Additional window types that are used mainly in larger buildings.

images

FIGURE 18.3 Basic window nomenclature follows a tradition that has developed over many centuries. The jamb consists of the head jamb across the top of the window and the side jamb to either side. In practice, the head jamb is usually referred to simply as the head and the side jambs as jambs. The sill frames the bottom of the opening on the exterior side, and the stool does the same on the interior. Interior casings and exterior casings cover the gaps between the jambs and the rough opening, and aprons do the same below the sill and stool.

A projected window is usually provided with pliable synthetic rubber weatherstripping that seals by compression around all the edges of the sash when it is closed. Single-hung, double-hung, and sliding windows generally must rely on brush-type weatherstripping because it does not exert as much friction against a sliding sash as rubber does. Brush-type materials do not seal as tightly as compression weatherstripping, and they are also subject to more wear than rubber weatherstripping over the life of the window. As a result, projected windows are generally somewhat more resistant to air leakage than windows that slide in their frames.

images

FIGURE 18.4 Awning and fixed windows in coordinated sizes offer the architect the possibility of creating patterned walls of glass. (Photo courtesy of Marvin Windows and Doors)

Glazed units for installation in roofs are specially constructed and flashed for watertightness. Skylights (also called unit skylights, to distinguish them from larger, framed-in-place skylights) may be either fixed or operable (venting). The term roof window is also sometimes applied to any venting skylight; at other times, it is applied only to operable windowlike units that include some kind of inward rotation capability to make outside glass surfaces accessible from the inside for easier cleaning.

Large glass doors (which are most often supplied by window manufacturers) may slide in tracks or swing open on hinges. The hinged French door opens fully and, with its arms flung wide, is a more welcoming type of door than the sliding door, but it cannot be used to regulate airflow through the room unless it is fitted with a doorstop that can hold it securely in an open position. The French door is prone to air leakage along its seven separate edges, which must be carefully fitted and weatherstripped. The terrace door, with only one operating door, minimizes this problem but, like the sliding door, can open to only half its area.

Window types that are used almost exclusively in commercial and institutional work include horizontally and vertically pivoting windows and side-hinged inswinging and top-hinged inswinging windows (Figure 18.2) These types all allow for inside washing of exterior glass surfaces. Because they project inward rather than outward, they are much less subject to the damage that could occur if, for example, casement windows were opened into the high winds that swirl around tall buildings. To further limit wind damage, windows in tall buildings are often fitted with devices that limit the extent to which they can be opened. In most tall buildings, if the windows operate at all, they are not meant to be used for ventilation unless the building’s air conditioning system is inoperative.

Insect screens may be mounted only inside the sash in casement and awning windows (since the sash swing outward). Screens are usually positioned to the exterior side of other window types. Sliding patio doors and terrace doors have exterior sliding screens, and French doors require a pair of hinged screen doors on the exterior. Pivoting windows cannot be fitted with insect screens.

Glass must be washed at intervals if it is to remain transparent and attractive. Inside surfaces of glass are usually easy for window washers to reach. Outside surfaces are often hard to reach, requiring ladders, scaffolding, or window-washing platforms that hang from the top of the building on cables. Accordingly, most operable windows are designed to allow personnel to wash the outside surface of glass while standing inside the building. Casement and awning windows are usually hinged in such a way that there is sufficient space between the hinged edge of the sash and the frame when the window is open to allow one’s arm to reach the outer surface of glass. Double-hung and sliding windows are often designed to allow sash to be rotated or tilted out of their tracks to allow easy cleaning of exterior glass from the building interior (Figure 18.13). See also the discussion of self-cleaning glass in the previous chapter.

Windows and glass doors may also be combined side-by-side or stacked vertically to create larger glazed areas with various fixed and operable components (Figures 18.4, 18.6, 18.7, 18.18).

Window Frames

Wood

The traditional frame material for windows is wood, but aluminum, steel, plastics, and combinations of these four materials have also come into widespread use. Wood is a fairly good thermal insulator, changes size relatively little with changes in temperature, and, if free of knots, is easily worked and consistently strong. But in service, wood shrinks and swells with changing moisture content and requires repainting every few years. When wetted by weather, leakage, or condensate, wood windows are subject to decay, though their resistance to decay can be improved with preservative treatments. Knot-free wood is becoming increasingly rare and expensive, so composite wood products are increasingly used for window frames. These include lumber made of short lengths of defect-free wood finger jointed and glued together, oriented strand lumber, and laminated veneer lumber. These materials, although functionally satisfactory, are not attractive, so they are normally covered with wood veneer on the interior and clad with plastic or aluminum on the exterior (Figures 18.5–18.7). Window frames made of solid wood may also be clad on the exterior for improved weather resistance and to reduce maintenance requirements. Clad wood windows, at the time of this writing, account for the largest share of the market for wood-framed windows.

images

FIGURE 18.5 Cutaway sample of an aluminum-clad wood-framed window. (Photo courtesy of Marvin Windows and Doors)

images

FIGURE 18.6 A pair of double-hung wood-framed windows in a dwelling. (Photo courtesy of Marvin Windows and Doors)

Aluminum

Aluminum used in window construction is strong, easy to form and join, and, in comparison to wood, much less vulnerable to moisture damage. The extrusion process by which aluminum sections are formed results in shapes with crisp, attractive profiles, and durable factory finishes eliminate the need for periodic repainting after installation. Aluminum conducts heat so rapidly, however, that unless an aluminum frame is constructed with a thermal break made of plastic or synthetic rubber components to interrupt the flow of heat through the metal, condensate and sometimes even frost will form on interior window frame surfaces during cold winter weather. Aluminum windows are also more costly than wood or plastic windows. The majority of commercial and institutional windows, as well as many residential windows, are framed with aluminum (Figures 18.8–18.10). Aluminum frames are usually anodized or permanently coated, as described in Chapter 21.

Plastics

Plastic window frames, though relatively new, now account for more than half of all windows sold in the U.S. residential market. Plastic windows never need painting, and they are fairly good thermal insulators. Many also cost less than wood or clad wood windows. The disadvantages of plastics as window frame materials are that they are not as stiff or strong as other window materials and they have very high coefficients of thermal expansion (Figure 18.11). The most common material for plastic window frames is polyvinyl chloride (PVC, vinyl), which is formulated with a high proportion of inert filler material to minimize thermal expansion and contraction. Some typical PVC window details are shown in Figures 18.10, 18.12, and 18.13.

images

FIGURE 18.7 Large double-hung wood windows and a triangular fixed window bring sunlight and views. (Photo courtesy of Marvin Windows and Doors)

images

FIGURE 18.8 The details of this commercial-grade double-hung aluminum window are keyed to the numbers on the small elevation view at the upper left. Cast and debridged thermal breaks, which are shown on the drawings as small white areas gripped by a “claw” configuration of aluminum on either side, separate the outdoor and indoor portions of all the sash and frame extrusions. Pile weatherstripping seals against air leaks at all the interfaces between sashes and frame. For help in understanding the complexities of aluminum extrusions, see Chapter 21. (Courtesy of Kawneer Company, Inc.)

images

FIGURE 18.9 (a) Two aluminum double-hung window units in back, with an aluminum sliding window in front. (b) A cutaway demonstration sample of a cast and debridged plastic thermal break in an aluminum window frame. In this proprietary design, the aluminum is “lanced” into the plastic at intervals to lock the two materials securely together. (Courtesy of Kawneer Company, Inc.)

images

FIGURE 18.10 Comparative details of a single-hung residential window with an aluminum frame (left) and a double-hung residential window with a PVC plastic frame (right). The small inset drawing at the top center of the illustration shows an elevation view of the window with numbers that are keyed to the detail sections below. The comparatively thick sections of plastic are indicative of the greater stiffness of aluminum as a material. The diagonally hatched areas of the aluminum details are plastic thermal breaks that interrupt the flow of heat through the highly conductive metal frame. The inherently low thermal conductivity of the PVC and the multichambered construction eliminate the need for thermal breaks in the plastic window. Compare the thickness of the aluminum in this residential window to that of the aluminum in the commercial window in Figure 18.8. (Reprinted with permission from AAMA Aluminum Curtain Wall Design Guide Manual)

images

FIGURE 18.11 A comparison of the coefficients of thermal expansion of wood, glass-fiber-reinforced plastic (GFRP), aluminum, and vinyl. Vinyl expands 15 times as much as wood, 8 times as much as GFRP, and 3 times as much as aluminum. Units on the graph are in./in./°F × 10−6 on the left of the vertical axis and mm/mm/°C × 10−6 on the right.

images

FIGURE 18.12 Cutaway sample of a plastic double-hung window with double glazing and an external half-screen. (Courtesy of Vinyl Building Products, Inc.)

images

FIGURE 18.13 For ease of washing the exterior surfaces of the glass, the sashes of this plastic window can be unlocked from the frame and tilted inward. (Courtesy of Vinyl Building Products, Inc.)

Glass-fiber-reinforced plastic (GFRP) windows, frequently referred to as fiberglass windows, are the newest product in the window market. GFRP frame sections are produced by a process of pultrusion: Continuous lengths of glass fiber are pulled through a bath of plastic resin, usually polyester, and then through a shaped, heated die in which the resin hardens. The resulting sash pieces are strong, stiff, and relatively low in thermal expansion. Like PVC, they are fairly good thermal insulators. However, GFRP windows are more expensive than those made of wood or plastic.

The thermal performance of both vinyl and GRFP window frames can be enhanced with foam insulation injected into the hollow spaces within the frame sections.

PLASTICS IN BUILDING CONSTRUCTION

The first plastic was formulated more than a century ago. The major development of plastic materials has taken place since 1930, during which time plastics have come increasingly into use in buildings. Presently, the U.S. construction industry uses more than 10 billion pounds (5 billion kg) of plastics each year in hundreds of applications.

Plastics in this context may be loosely defined as synthetically produced giant molecules (polymers or copolymers) made up of large numbers of small, repetitive chemical units. Most plastics are based on carbon chemistry (Figure A), except for the silicones, which are based on silicon (Figure B). The various synthetic rubber compounds are usually considered a different class of materials from plastics, although chemically they are similar; they are often referred to as elastomers. Plastics and elastomers are manufactured largely from organic molecules obtained from oil, natural gas, and coal.

polymer is composed of many identical chemical units or monomers. Polyvinyl Chloride (PVC), for example, is a polymer that is produced by polymerizing vinyl chloride monomers into a long chemical chain (Figure C). A copolymer consists of repeating patterns of two or more monomers. High-impact polystyrene is a copolymer made up of both polystyrene and polybutadiene (Figure D).

The molecular structure of a polymer or copolymer bears an important relationship to its physical properties. A high-density polyethylene molecule, for instance, is a long single chain containing up to 200,000 carbon atoms (Figure E). Low-density polyethylene has a branching molecular structure that does not pack together as readily as the single chain (Figure F).

There are two broad classes of plastics. Thermoplastic plastics consist generally of linear molecules and may be softened by reheating at any time after their manufacture. Upon cooling, they regain their original properties. Thermosetting plastics have a molecular structure that is strongly crosslinked in three dimensions. They cannot be remelted after manufacture. Thermosetting plastics are generally harder, stronger, and more chemically stable than thermoplastics.

Many modifiers are added to various polymers to change their properties or reduce their cost. Plasticizers are organic compounds that impart flexibility and softness to otherwise brittle plastics. Stabilizers are added to resist deterioration of polymers from the effects of sunlight, heat, oxygen, and electromagnetic radiation. Fillers are inexpensive nonreacting materials such as talc or marble dust that are added to reduce the cost or to improve toughness or resistance to high temperatures. Extenders are waxes or oils that add bulk to the plastic at low cost. Reinforcing fibers of glass, metal, carbon, or minerals can increase strength, impact resistance, stiffness, abrasion resistance, hardness, and other mechanical properties. Flame retarders are often introduced into plastics that are destined for interior use in buildings. Color can be added to plastics with dyes or pigments. Some examples of extremely useful modifiers are the carbon black that is often added to polyethylene as a stabilizer to improve its resistance to sunlight, the lead carbonate that is used to stabilize PVC products for use outdoors, the di-isooctyl plasticizer that converts brittle PVC to a stretchable, rubbery compound, and the chopped glass fibers that reinforce polyester to make it suitable for use in boat hulls and building components.

images

The plastics used in buildings range from dense solids such as those used in floor tiles to the lightweight cellular foams used for thermal insulation. They include the soft, pliable sheets used for roofing membranes and flashings and the hard, rigid plastics used for plumbing pipes. Glazing sheets are made from highly transparent plastics, whereas most plastics manufactured for other purposes are opaque.

People readily recognize the solid plastic materials used in construction, but most tend not to realize that liquid plastics are major ingredients of many protective paints and coatings. Plastics show up also in the form of composites, in which they are teamed with nonplastic materials: laminates consisting of paper and melamine formaldehyde, used for countertops and facings; sandwiches such as the foam-core plywood panels used as cladding for heavy timber frame buildings (see Chapter 3); and mixes of plastics with particulate materials, such as polyester concrete (stone aggregates cemented with a polyester binder rather than portland cement) and particleboard (wood chips and phenolic resins).

Plastics are given form through any of an almost endless list of processes. Extrusion manufactures long shaped sections by forcing the plastic through a shaped die. Pultrusion, used for certain fiber-reinforced products, is much the same as extrusion, except that the section is pulled through the die rather than pushed. A host of molding processes cast plastic into shaped cavities to give it form. Many foam plastics can be foamed directly into the mold, which they expand to fill. Polyethylene film is produced by film blowing, in which air is pumped into a small extruded tube of plastic to expand and stretch it into a very thin-walled tube many feet in diameter. The large tube is then slit lengthwise, folded, and rolled for distribution. Films and sheets can be made by casting plastic onto a chilled roller or a chilled moving belt. Some plastic sheet products and many plastic laminates are produced by calendaring, a process in which a material or a sandwich of materials is pressed first through hot rollers, then cold rollers.

Thermoplastic sheets may be further formed by heating them and pressing them against shaped dies. The pressing force may be furnished mechanically by a matching die or by air pressure. If compressed air pushes the plastic into the die, the process is called blow forming. In vacuum forming, a pump draws the air from between the heated plastic sheet and the die, and atmospheric pressure does the rest.

Many plastics are amenable to machining processes— sawing, drilling, milling, planing, turning, sanding—like those used to shape wood or metal. Nylon and acrylics are often given final form in this way. Various plastics can also be joined with adhesives, or with heat or solvents that soften the two surfaces to be joined so that they can be pressed together to reharden as a single piece.

Some Synthetic Rubbers Used in Construction

Chlorinated Polyethylene, Chlorosulfonated Polyethylene (Hypalon)Roof membranes
Ethylene-Propylene-Diene Monomer (EPDM)Roof membranes, flashings
Isobutylene-Isoprene Copolymer (butyl rubber)Flashings, waterproofing
Polychloroprene (Neoprene)Gaskets, waterproofing
Polyisobutylene (PIB)Roof membranes
Polysiloxane (silicone rubber)Sealants, adhesives, coatings, roof membranes
PolyurethanesSealants, insulation
Sodium Polysulfide (polysulfide, thiokol)Sealants
images

Plastics can be joined mechanically with screws or bolts. Many plastic products are designed with ingenious snap-together features so that they can be joined without fasteners.

As a group, plastics exhibit some common advantages and some common problems when used as building materials. Among the advantages, plastics in general are low in density, they are often cheaper than other materials that will do the same job, they have good surface and decorative qualities, and, because their molecules are made to order for each end use, they can often offer a better solution to a building problem than more traditional materials. Plastics generally are little affected by water or biological decay, and they do not corrode galvanically. They tend to have low thermal and electrical conductivity. Many have high strength-to-weight ratios. Most plastics are essentially impermeable to water and water vapor. Many are very tough and resistant to abrasion.

Their disadvantages are also numerous. All plastics can be destroyed by fire, and many give off toxic combustion products. Some burn very rapidly, but others are slow-burning, self-extinguishing, or do not ignite at all, so careful selection of polymers and modifiers can be crucial in building applications. Flame-spread ratings, smoke-developed ratings, and toxicity of combustion products should be checked for each use of plastics within a building.

Plastics have much higher coefficients of thermal expansion than other building materials and require close attention to the detailing of control joints, expansion joints, and other devices for accommodating volume change. Plastics tend not to be very stiff. They deflect considerably more under load than most conventional materials. Taken together with their combustibility, this severely limits their application as primary structural materials. Many also creep under prolonged loading, especially at elevated temperatures. In strength, plastics vary from fiber-reinforced composites that are as strong as many metals (but not nearly as stiff) to cellular foams that can be crushed easily between two fingers.

Plastics tend to degrade in the outdoor environment. They are especially susceptible to attack by the ultraviolet component of sunlight, oxygen, and ozone. In many plastic products (acrylic glazing sheets and some synthetic rubbers, for example), these problems have largely been solved by adjustments to the chemistry of the material that have resulted from a prolonged program of testing and research. However, it is usually a mistake for a designer to use an untried plastic material in an exposed location without consulting its manufacturer.

The accompanying table lists the plastics most commonly used in construction.

Selected References

1. Dietz, Albert G. H. Plastics for Architects and Builders. Cambridge, MA, MIT Press, 1969.

Despite its age, this deservedly famous little book is still the best introduction to the subject for building professionals.

2. Hornbostel, Caleb. Construction Materials: Types, Uses and Applications (2nd ed.). New York, John Wiley & Sons, Inc., 1991.

The section on plastics of this monumental book gives excellent summaries of the plastics most used in buildings.

Steel

The chief advantage of steel as a frame material for windows is its strength, which permits steel sash sections to be much more slender than those of wood and aluminum (Figures 18.14–18.18). Usually, steel windows are permanently coated to present a pleasing appearance and prevent corrosion. If they are not, they will need periodic repainting. Steel is less conductive of heat than aluminum, so it is unlikely to form condensation under most weather conditions. Thus, steel window frames are rarely provided with thermal breaks, although, where greater thermal performance is required, thermal break frames are also available from some manufacturers. They are, however, more conductive of heat than wood or plastic frames.

Muntins

In earlier times, because of the difficulty of manufacturing large lights of glass that were free of significant defects, windows were necessarily divided into small lights by muntins, thin wooden bars in which the glass was mounted within each sash. (The upper sashes in Figure 18.6 have muntins.) A typical double-hung window had its upper sash and lower sash each divided into six lights and was referred to as a six over six. Muntin arrangements changed with changing architectural styles and improvements in glass manufacture. Today’s windows, glazed with large, virtually flawless lights of float glass, need no muntins at all, but many building owners and designers prefer the look of traditional muntined windows. This desire for muntins is greatly complicated by the necessity of using insulated (double or triple) glazing to meet building code energy conservation requirements. Some manufacturers offer the option of individual small lights of double glazing held in deep muntins. This is relatively expensive, and the muntins tend to look thick and heavy. The least expensive option utilizes grids of imitation muntin bars, made of wood or plastic, that are clipped into each sash against the interior surface of the glass. These are designed to be removed easily for washing the glass. Other alternatives are imitation muntin grids between the sheets of glass, which are not very convincing replicas of the real thing, and grids, either removable or permanently bonded to the glass, on both the outside and inside faces of the window. Another option is to use a prime window with authentic divided lights of single glazing and to increase its thermal performance with a storm sash. Of all the options, this one looks best from the inside, but reflections in the storm sash largely obscure the muntins from the outside.

Glazing

A number of glazing options are available for residential windows. Single glazing is acceptable only in the mildest climates because of its low resistance to heat flow and the likelihood that moisture will condense on its interior surface in cool weather. Sealed double glazing or single glazing with storm windows is the minimum acceptable glazing under most building codes. Storm windows must be taken down periodically and cleaned, which is a nuisance that can be avoided by using sealed double or triple glazing. More than 90 percent of all residential windows sold today in North America have two or more layers of glass. Double glazing with a low-emissivity (low-e) coating on one glass surface performs at least as well as triple glazing. See the previous chapter for a more in-depth discussion of glazing types.

images

FIGURE 18.14 These samples of hot-rolled steel window frame sections demonstrate a range of permanent finishes. The nearest sample includes a snap-in aluminum bead for holding the glass in place. (Steel windows by Hope’s; photography by David Moog)

images

FIGURE 18.15 Cutaway sample of a steel-framed window with aluminum glazing beads and a permanent finish. The details of this window are shown in Figure 18.17. (Steel windows by Hope’s; photography by David Moog)

images

FIGURE 18.16 With fire-rated glazing such as wired glass, shown here, a steel window can be fire rated. This window features an awning sash below a fixed light. (Steel windows by Hope’s; photography by David Moog)

images

FIGURE 18.17 Manufacturer’s details of a steel window in a masonry wall. The details are keyed by number to the elevation views at the bottom. Notice the bent steel anchors, shown with broken lines, that fasten the window unit to the masonry. (Steel windows by Hope’s)

Figure 18.19 lists thermal transmittance properties for some example combinations of window frame and glazing options. The listed U-Factors are overall values for complete window assemblies, accounting for differences in the thermal properties of the center of glass, edge of glass, and frames. When selecting actual windows, whole-window U-Factors for the particular window are provided by the window manufacturer as determined by laboratory testing or computer simulation. In addition to thermal transmittance, solar heat gain coefficient (SHGC) and visible light transmittance (VT) are other important measures of a window system’s performance. See the previous chapter for a discussion of these properties.

images

FIGURE 18.18 The narrow sight lines of steel windows and doors are evident in this photograph. (Steel windows and doors by Hope’s; photography by David Moog)

Installing Windows

Some catalog pages for windows are reproduced in Figures 18.20–18.22 to give an idea of the information on window configurations that is available to the designer. Important dimensions given in catalogs are those of the rough opening and masonry opening. The rough opening height and width are the dimensions of the hole that must be left in a framed wall for installation of the window. They are slightly larger than the corresponding outside dimensions of the window unit itself to allow the installer to locate and level the unit accurately and to ensure that the window unit is isolated from structural stresses within the wall system. The masonry opening dimensions indicate the size of the hole that must be provided if the window is mounted in a masonry wall.

A rough opening or masonry opening should be flashed carefully before the window is installed in order to avoid later problems with leakage of water or air (for example, Figures 6.12 and 6.13). At a minimum, this flashing may be done with asphalt-saturated felt. A better result is obtained by using adhesive-backed window flashing materials or metal. Adhesive-backed flashings may be made of rubberized asphalt, similar in composition to the rubberized roof underlayment frequently used along the eaves of the roof and described in Chapter 7, reinforced plastic, or synthetic fibers designed for compatibility with proprietary building wrap products. Metal used for flashings must be corrosion resistant.

Most factory-made windows are extremely easy to install, often requiring only a few minutes per window. Windows that are framed or clad in aluminum or plastic are usually provided with a continuous flange around the perimeter of the window unit. When the unit is pushed into the rough opening from the outside, the flange bears against the sheathing along all four edges. After the unit has been located and plumbed (made level and square) in the opening, it is attached to the frame by means of nails driven through the flanges. Then all the edges of the flanges should be made airtight, as shown in Figure 6.12. The flanges are eventually concealed by the exterior cladding or trim.

Methods for anchoring window units into masonry walls vary widely, from nailing the unit to wood strips that have been fastened inside the masonry with bolts or powder-driven fasteners to attaching the unit to steel clips that have been laid into the mortarjoints of the masonry. The window manufacturer’s recommendations should be followed in each case.

images

FIGURE 18.19 Comparative U-Factors for some window frame and glazing combinations. Lower values correspond to better thermal performance. Note that the frame material has a significant impact on the overall performance of the window assembly. The figures listed here are examples only. The thermal transmittance of any particular window is influenced by the properties of the glazing and frame, the size of the window, whether the window is operable or fixed, and other factors.

images

FIGURE 18.20 Manufacturer’s catalog details for an aluminum-clad, wood-framed casement window with double glazing and an interior insect screen. (Courtesy of Marvin Windows and Doors)

images

FIGURE 18.21 One of several pages in a manufacturer’s catalog that show stock sizes and configurations of aluminum-clad wood casement windows. (Courtesy of Marvin Windotvs and Doors)

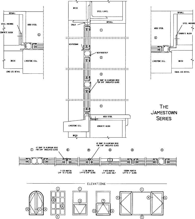
images

Comments

Leave a Reply

Your email address will not be published. Required fields are marked *